EXCLUSIVITE PARIS 16ÈME – TROCADERO KLEBER - 195 M² DE BUREAUX EN OPEN-SPACE













Descriptif détaillé
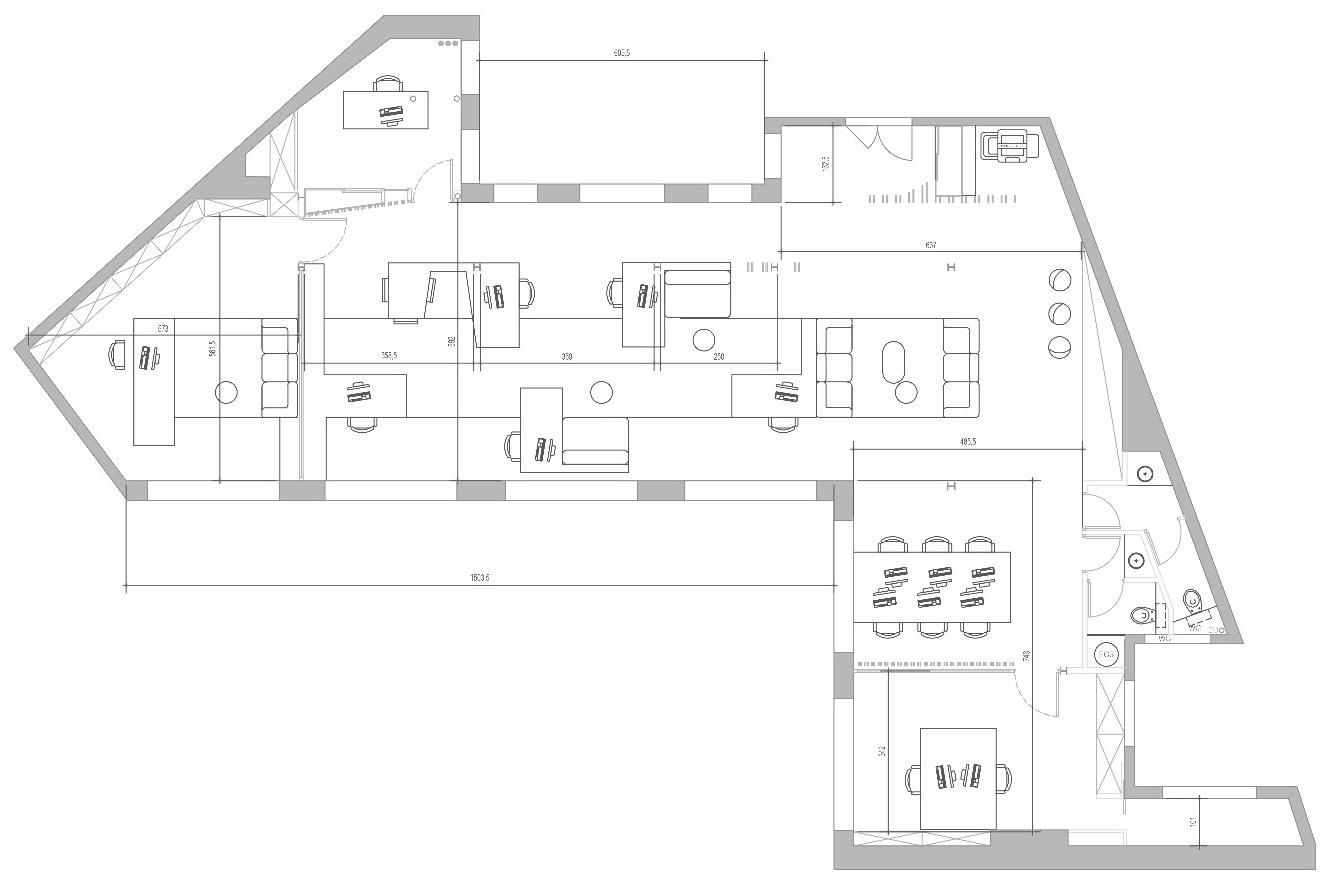
Dans un immeuble en copropriété d'excellent standing et parfaitement entretenu, à proximité immédiate de la Place du Trocadéro et de l’Avenue Kléber, JEAN-DAVID GUEDJ & ASSOCIES vous propose des bureaux commerciaux entièrement rénovés, aucuns travaux à prévoir, d’une surface de 195 m², situé au 3ème étage avec ascenseur, gardien, digicode, complété d’une cave, parties communes en très bon état d’entretien, chauffage collectif.
Ce bien comprend un vaste open-space lumineux de 170 m², un bureau de 25 m², une kitchenette équipée, des sanitaires, un local technique, de nombreux placards le tout étant vendu intégralement meublé (meubles et rangements fabriqués sur mesure), locaux climatisés et équipés de câblages informatiques et d’une armoire de baies de brassage.
Disponibilité : Immédiate.
Si ce bureau à vendre à Paris 16 vous intéresse ou si vous souhaitez obtenir plus de détails, n'hésitez pas à me contacter pour organiser une visite et bénéficier de toutes les informations nécessaires pour votre projet immobilier.
Excellent produit idéalement situé, métro Boissière.
Taxes foncières : 5.158 €
Taxes sur les bureaux : 4.863 €
Prix : 3.700.000 € (honoraires d’intermédiation inclus à la charge du vendeur)
Contact : Maître Jean-David GUEDJ : 01.40.72.28.28
3 700 000,00 €
A propos de cette annonce
- Mandat exclusif
- Bureaux
- Vente
- 75016 Paris
- 195 m2 habitables


- Annonce publiée le 24 septembre 2025
- Dernière modification le 02 octobre 2025
Pour plus d'informations
- Me Jean-David GUEDJ
- JEAN-DAVID GUEDJ & ASSOCIES
- 27 rue Nicolo 75116 PARIS
- 01.40.72.28.28
- jdg[kukac]cabinet-guedj.com
Référence du bien : A5959