Paris 12e – Michel Bizot – Studio avec cave dans immeuble de standing








Descriptif détaillé
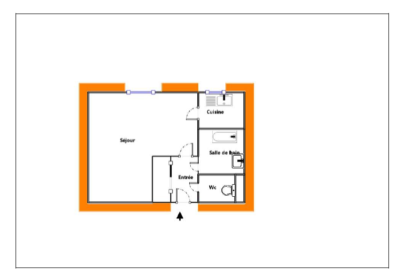
Paris 12e – Michel Bizot – Studio avec cave dans immeuble de standing À deux pas du métro Michel Bizot, dans un immeuble récent de bon standing avec ascenseur et parties communes soignées, découvrez ce studio de 27,13 m² Carrez (28,36 m² au sol), situé au 1er étage. L’appartement se compose d’une entrée avec rangements, d’un séjour lumineux orienté vers la rue, d’une cuisine indépendante, ainsi que d’une salle de bain et WC indépendant. Une cave complète ce bien. Travaux de rafraîchissement à prévoir (peinture refaite), offrant un beau potentiel d’aménagement. Idéal pour un premier achat, un pied-à-terre ou un investissement locatif. Copropriété bien entretenue, ravalement de façade voté et financé, travaux à venir en mars 2026. • DPE : Classe D • GES : Classe B • Charges mensuelles : 101 € • Taxe foncière : 774,00 € • Prix : 299.000 € FAI (honoraires 5% H.T.à la charge du vendeur)
« Les informations sur les risques auxquels ce bien est exposé sont disponibles sur le site Géorisques : www.georisques.gouv.fr
299 000,00 €
A propos de cette annonce
- Appartement
- Vente
- 75012 Paris
- 27 m2 habitables


- Annonce publiée le 18 novembre 2025
- Dernière modification le 19 février 2026
Pour plus d'informations
- Me Patricia GARCIA
- BGD AVOCATS
- 13 Square Mérimée 06400 CANNES
- 04.92.98.18.00
- 06.20.66.36.60
- patriciagarcia[kukac]bgdavocats.fr
Référence du bien : A6097