Maison 8 pièces avec piscine – SERRES MORLAAS (64160)








Descriptif détaillé
Située dans un quartier calme et résidentiel de SERRES-MORLAAS (à 10' de la ville de PAU), belle villa de 200 m² édifiée sur deux niveaux avec à l’extérieur un superbe espace piscine aménagé.
L’ensemble immobilier est bâti sur un terrain arboré de 2 000 m² orienté plein sud et sans vis à vis.
Cette maison comporte :
Au rez-de-chaussée : Entrée, dégagement, salon/salle à manger, cuisine, 2 chambres, bureau, WC, salle de bains avec baignoire et douche, garage et buanderie.
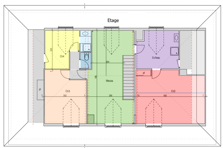
A l'étage : Mezzanine, 3 chambres, 2 salles d’eau, WC.
A l’extérieur : Piscine enterrée, terrasse sur 2 niveaux, pool house, abri de jardin.
L’habitation dispose d’une bonne isolation, de menuiseries en double vitrage, d’un parquet bois ainsi que d’une cheminée équipée d’un insert dans le séjour-salle à manger.
Cette grande maison de 200 m² dispose d’un fort potentiel sur sa partie habitable permettant de répondre aux éventuels besoins d’aménagement, d’équipements et/ou de décoration.
Les + :
- Localisation avec environnement calme et vue Pyrénées,
- Grand terrain arboré avec piscine et jardin,
- Bâti des murs et toitures en bon état général,
- Potentiels de la partie habitable,
- Aménagements des extérieurs.
Montant estimé des dépenses annuelles d'énergie pour un usage standard : entre 2427 € et 3283 € par an. Prix moyens des énergies indexés au 01/01/2021 (abonnements compris).
Les informations sur les risques auxquels ce bien est exposé sont disponibles sur le site Géorisques : www.georisques.gouv.fr
Les honoraires du cabinet sont à la charge du vendeur
Cabinet de Maître Anne CHOY – Avocat mandataire en transactions immobilières
Renseignements et/ou photos complémentaires, demande de visite : par courriel ou par téléphone (du lundi au vendredi).
520 000,00 €
A propos de cette annonce
- Mandat exclusif
- Maison/villa
- Vente
- 64160 Serres-Morlaas
- 200 m2 habitables
- 2000 m2 de terrain
- 5 chambre(s)
- 8 pièce(s)


- Annonce publiée le 17 novembre 2025
Pour plus d'informations
- Me Anne CHOY
- CHOY Anne
- 10, rue Perpignaa 64000 Pau
- 05 59 13 02 51
- anne.choy[kukac]choy-avocatconseil.fr
Référence du bien : A6094