4 PIECES EN DUPLEX MAISONS-ALFORT 440.000 EUROS










Descriptif détaillé
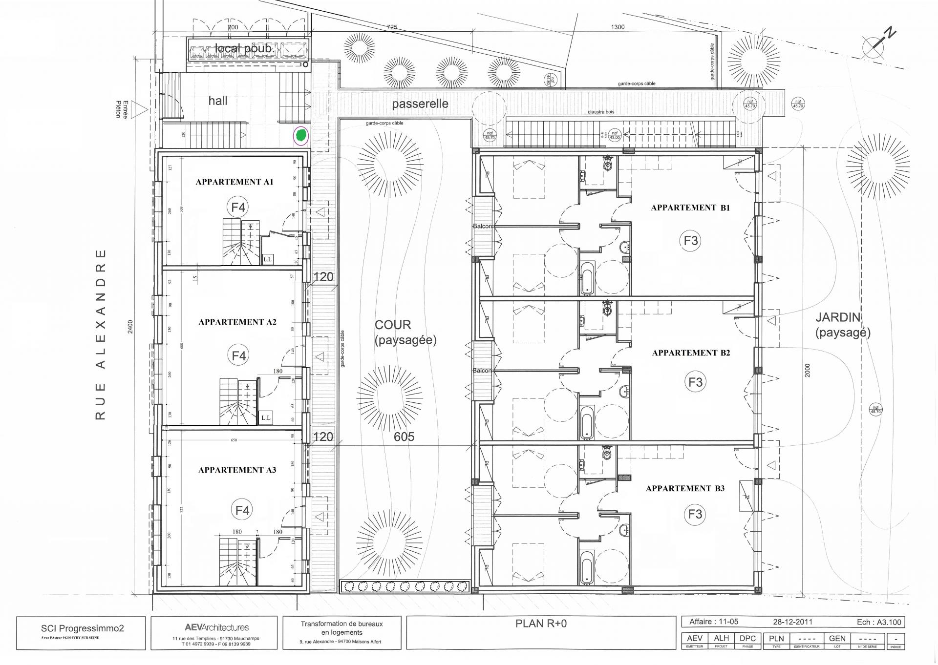
A Maisons-Alfort (Val de Marne), au 9 rue Alexandre, (station Maison Alfort - les Juilliottes)
Dans un immeuble à usage exclusivement d’habitation contemporain (construction en 2014), composé de deux bâtiments sur un seul étage.
Petite copropriété avec jardin intérieur au calme absolu.
Je vous propose à l’achat un appartement en rez-de-chaussée surélevé. ( appartement lot A3 sur le plan en photo)
Il s’agit d’un duplex.
L’appartement présente une surface totale de 82 m2 Loi Carrez avec une belle hauteur sous plafond en rez-de-chaussée de 2.60 mètres.
Au rez-de-chaussée se situe un immense séjour avec cuisine américaine d’une surface de 39,20 m2, ainsi qu’un wc « invité ».
A l’étage se trouvent :
-trois belles chambres respectivement de 9,50 m2, 10,00 m2 et 12,00 m2, avec placards.
-et une salle de bains avec sèche serviettes et un second wc.
Appartement de standing dans une résidence sécurisée avec visiophone.
Une place de parking en sous-sol complète ce bien.
A visiter rapidement.
Prix de vente : 440.000 euros, honoraires inclus, charge vendeur.
440 000,00 €
A propos de cette annonce
- Appartement
- Vente
- 94700 Maisons-Alfort
- 82 m2 habitables
- 3 chambre(s)
- 4 pièce(s)


- Annonce publiée le 21 avril 2021
- Dernière modification le 17 novembre 2021
Pour plus d'informations
- Me Caroline BOISSEL
- CABINET CAROLINE BOISSEL
- 88 R DE RENNES 75006 Paris
- 01.81.80.40.94
- 625300459
- carolineboissel[kukac]gmail.com
Référence du bien : A3737