[Vendu] Garches appartement de 68 m² au calme







Descriptif détaillé
Promesse de vente en cours
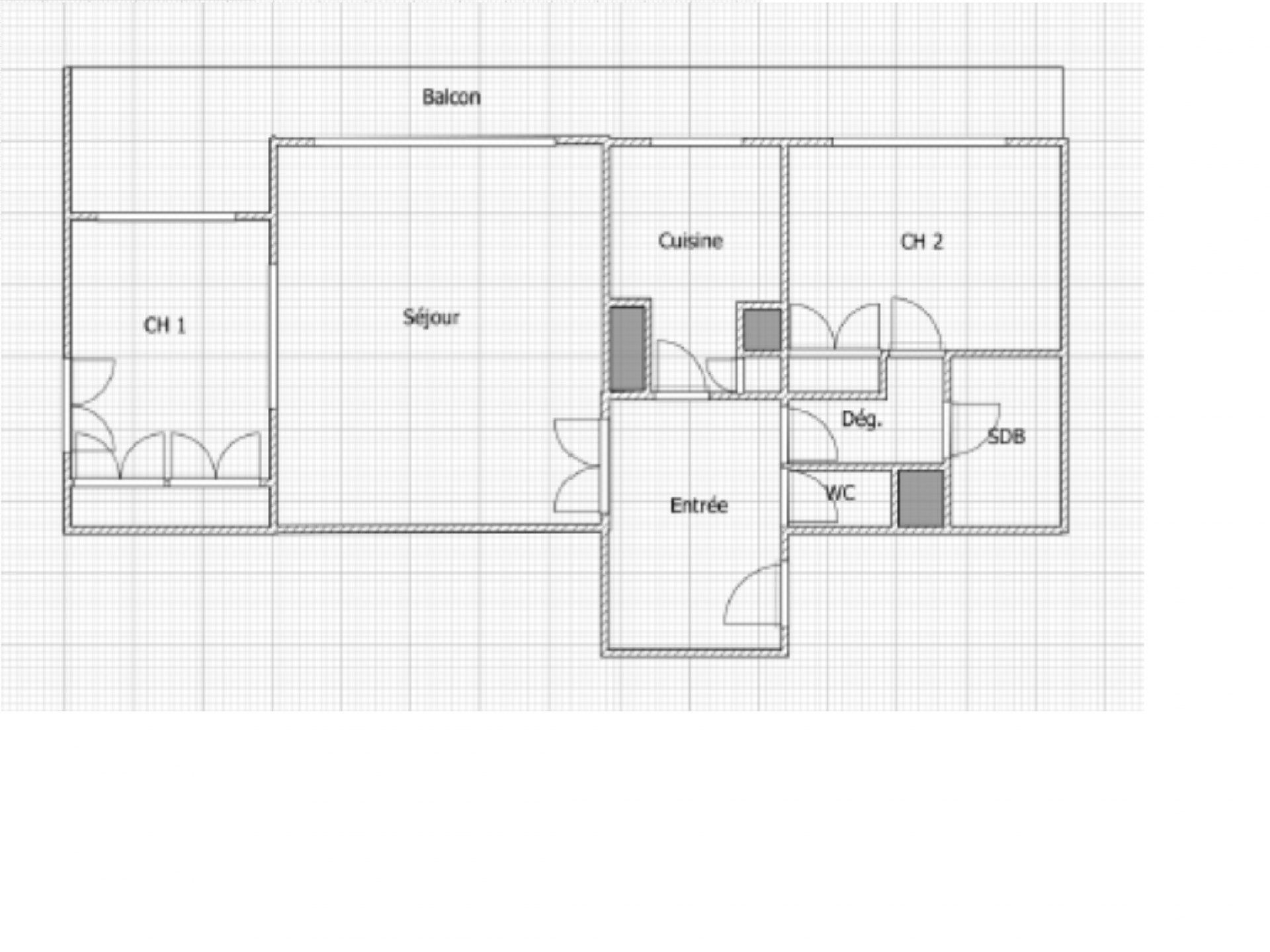
Appartement 2/3 pièces de 68,27 m² à Garches au 3ème et dernier étage, sans ascenseur, d'une petite copropriété très calme dans un quartier résidentiel et pavillonnaire
Bien situé avec école, collège, piscine, gymnase et petits commerces à proximité, l'appartement dispose d'un balcon filant et d'une terrasse (16.27 m²) avec vue dégagée sur des espaces verts.
Idéal pour un jeune couple, l'appartement comprend une entrée dégagée, une chambre et un double séjour avec des placards (possibilité salon plus deux chambres)
Le bien dispose également d'une cave et d'un emplacement de parking.
Travaux à prévoir.
359 500,00 €
A propos de cette annonce
- Appartement
- Vente
- 92380 Garches
- 68 m2 habitables
- 1 chambre(s)
- 2 pièce(s)

161 kWhep / m2 / an : Classe C

37 kWhéqCO2gEP / m2 / an : Classe D
- Annonce publiée le 15 mai 2019
- Dernière modification le 02 juillet 2019
Pour plus d'informations
- Me Pascale GOUAILHARDOU-CRUZEL
- GOUAILHARDOU-CRUZEL PASCALE
- 19 rue Aristide Briand 92170 VANVES
- 01.47.36.78.10
- cruzel.avocat[kukac]gmail.com
Référence du bien : A2601